Продавам парцели в местността 7- ми километър
- €7,300/14,278 лв.
- €7,300/14,278 лв.
Описание
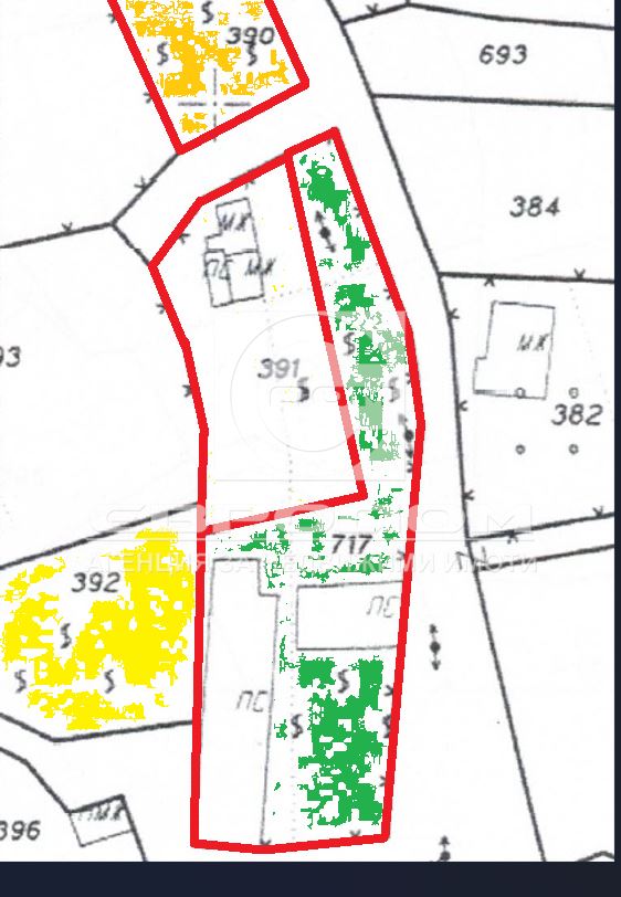
Продавам съседни парцели с площи от 365 кв.м., 665 кв.м. и 1143 кв.м. в местността 7- ми километър, общ. Стара Загора. Цена от 20 евро за кв.м. Парцелите са с номера 390, 392 и 717 в скицата.
Представяме Ви отлична възможност за инвестиция или изграждане на Вашия бъдещ дом – **парцел с площ от 809 кв.м**, разположен в предпочитан район на **Местност 7-ми километър**, общ.Стара Загора. Имотът се предлага на цена от **16 180 €**, което го прави изключително атрактивен избор за хора, търсещи спокойствие, простор и близост до града.
– Подходящ за жилищно строителство, вила.
– Имотът предлага възможност за създаване на дом сред тишина и природа.
– Лесен достъп до гр. Стара Загора.
– Районът е предпочитан за живеене поради спокойната атмосфера и чистия въздух.
Локацията осигурява бърз и удобен достъп до града, което го прави отличен избор за хора, търсещи баланс между природа и градски удобства.
Свържете се с мен за повече информация и оглед!
ОБЪРНЕТЕ ВНИМАНИЕ НА СЛЕДНОТО:
- Цялата информация и описаниe на имота, съдържащи се в тази обява, се основават изключително на информация, предоставена от собственика или други трети страни. Не поемаме отговорност за пълнотата, точността и навременността на тази информация.
- Свържете се с отговорния брокер, цитирайте номера на офертата, която представлява интерес за Вас и уточнете детайлите! Имайте предвид, че по телефон не даваме информация за цените на имотите по категории, райони и т.н. Ако имате нужда от такава информация свържете се с наш брокер и запазете час за среща в наш офис.
- По време на оглед нашият брокер ще се легитимира пред Вас! Легитимацията ви гарантира, че брокера е редовен член на НСНИ, приел е и спазва Етичният кодекс на НСНИ, е законен представител на агенцията, с която се асоциира ( видно от самата карта ) и можете спокойно да му се доверите за осъществяването на една успешна сделка с недвижим имот. Моля изисквайте този документ от нашите брокери при среща с тях във връзка с изпълнението на служебните им задължения! Картата за легитимация е със следните задължителни атрибути:
- Снимка на брокера
- Трите имена на брокера
- Длъжност
- Агенция, с която е асоцииран
- Номер в професионалният регистър на агенциите, брокерите и агентите на недвижими имоти
- Годината на валидност
- Логата на НСНИ – Национално Сдружение Недвижими Имоти и Професионалния регистър.
Адрес
Преглед в Google Maps-
Град: Стара Загора, област
-
Квартал: с.Малка Верея
Детайли
Обновено на март 31, 2026 в 1:55 pm-
№ на оферта 19022
-
Цена €7,300/14,278 лв.
-
Квадратура 365
-
Спалня 0
-
Стая 0
-
Баня 0
-
Вид имот Парцел
-
Вид сделка Продава
-
Цена кв.м. 20
Екстри
Лихвен калкулатор
-
Първо плащане
-
Размер на заема
-
Месечна вноска
